1996 erhielt das Strohballen und Stroh-Lehmhaus (Leichtlehm) der Architektin Eva Rubin (Tochter des Architekten Roland Rainer) einen Preis im Rahmen des Wettbewerbes „Sonnengestütztes Niedrigenergiehaus“ der TU Wien, 1998 den G. Domenig Sonderpreis und den 1. Preis im Rahmen eines Öko-Wettbewerbes der Kleinen Zeitung.
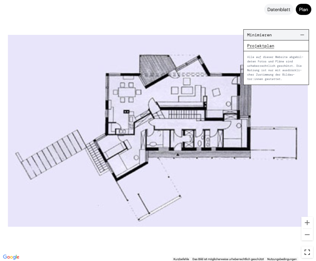
Im Zentrum des Entwurfs stehen der Lehm und dessen hervorragende wohnphysikalische und ökologische Eigenschaften. Er bildet in Form von Leichtlehm gemeinsam mit der Tragkonstruktion in Holzskelettbauweise die Außenwände. Eine weitere Entwurfsleitlinie ist die Kombination der sonnen- bedingten Südorientierung mit der Hauptblickrichtung, die um 30° nach Osten verschwenkt ist. Diese Randbedingungen wurden in räumlich abwechslungsreichen Grundrissen und einer klaren, zeitgemäßen Gestaltung umgesetzt. In ökologischer Hinsicht wird bei Verwendung von Lehm die Herstellungsenergie des Gebäudes drastisch reduziert. Für Tragwerk und Innenausbau wurde heimisches Holz verwendet. Das Haus ist nordseitig vollständig eingegraben und konsequenterweise mit einem Gründach gedeckt. Durch eine Regenwassersammelanlage und den Verzicht auf Materialien mit ozonschädigenden Emissionen wird das ökologische Konzept vervollständigt (Quelle: nextroom). Fotos: Eva Rubin






