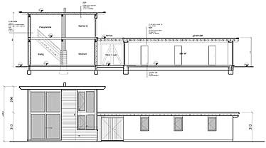
Zweiteiliges Strohballenhaus in Averbode, der Zubau ist in lasttragender Strohballenbauweise errichtet, das Haupthaus in Holzständerbauweise mit Strohballenwand im Norden und Zellulose gedämmt. Info: orca.skynetblogs.be
Eckdaten
Ort:Averbode
Fertigstellung:2006
Entwurf & Planung:ORCA Architecten, Herwig van Soom Besichtigung:Ja
Pressebilder:Ja










